` The Dean, Alresford, Hampshire - I-Pack
The Dean, Alresford, SO24 9FT

1 bedroom for sale

£250,000

Hive
Summary
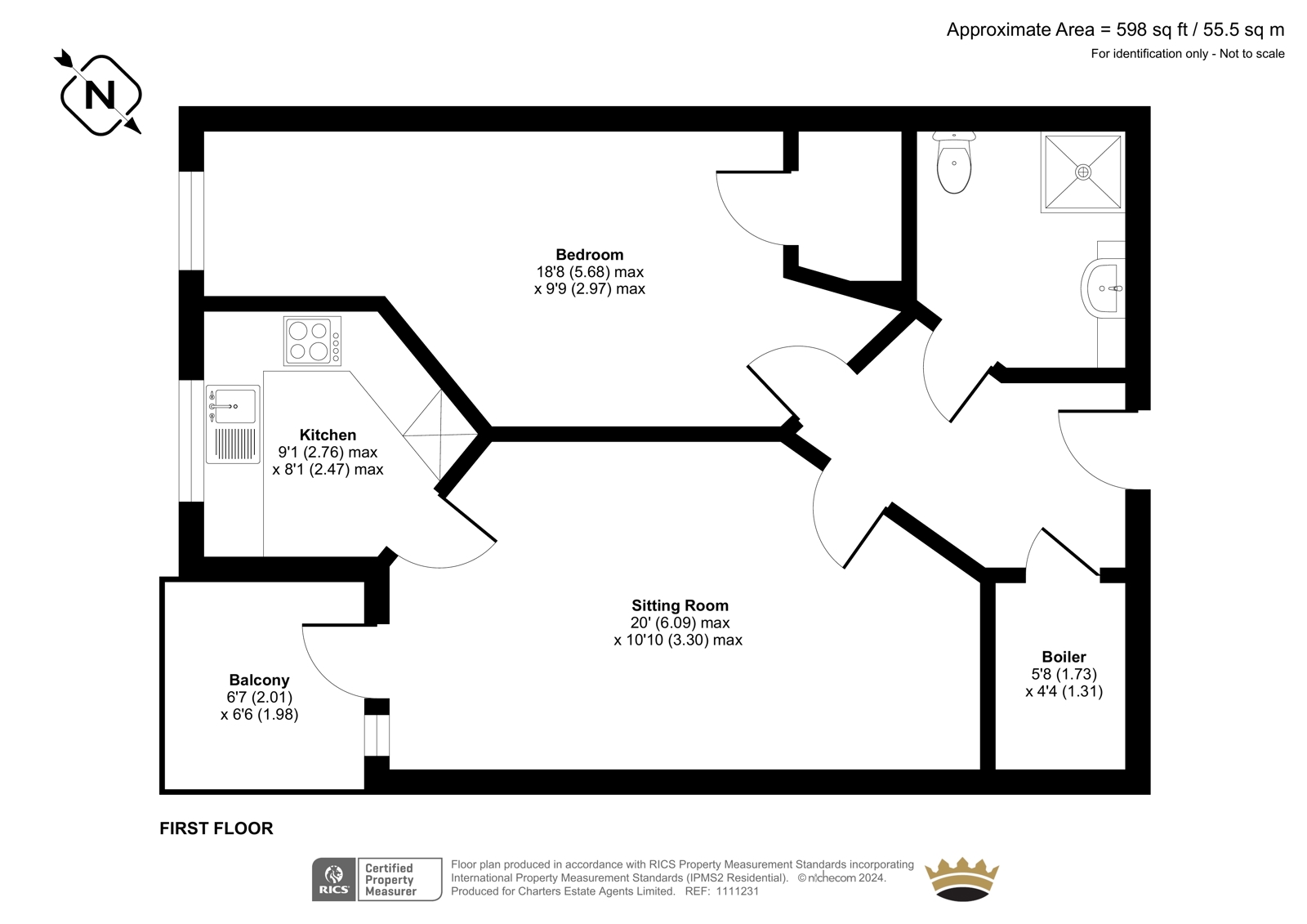
The first-floor apartment enjoys beautiful views from the private balcony over the landscaped communal gardens and offers a large double bedroom, a modern tiled shower room, fitted kitchen and a sizeable sitting/dining room with a patio door to the superb balcony. The apartment is located on the first floor, with lifts and stairs available to all floors. The front door leads to a welcoming entrance hall, with a large boiler/storage cupboard. The generous sitting/dining room displays doors which open to the west-facing balcony, while the contemporary kitchen is fitted with a range of wall, base and drawer units with integrated appliances. The double bedroom has built-in storage, with the level access tiled shower room completing the accommodation The communal entrance to the development leads into a spacious reception area and access to all on-site facilities, including a hair salon, bistro style restaurant, communal lounge, laundry services and the on-site staff and care providers. Further advantages include a guest suite for family and friends and 24-hour emergency call system, with a video entry system. TENURE Leasehold Unexpired Years: 995 Annual Ground Rent: £435 Ground Rent Increase: TBC Ground Rent Review Period: TBC Annual Service: £8,728.44 These details are to be confirmed by the vendor's solicitor and must be verified by a buyer's solicitor. Services: Water – Mains Gas - No Electric - Mains Sewage - Mains Heating – Electric radiators Materials used in construction: TBC How does broadband enter the property: TBC For further information on broadband and mobile coverage, please refer to the Ofcom Checker online