` Salisbury Close, Alton, Hampshire - I-Pack
Salisbury Close, Alton, GU34 2TP

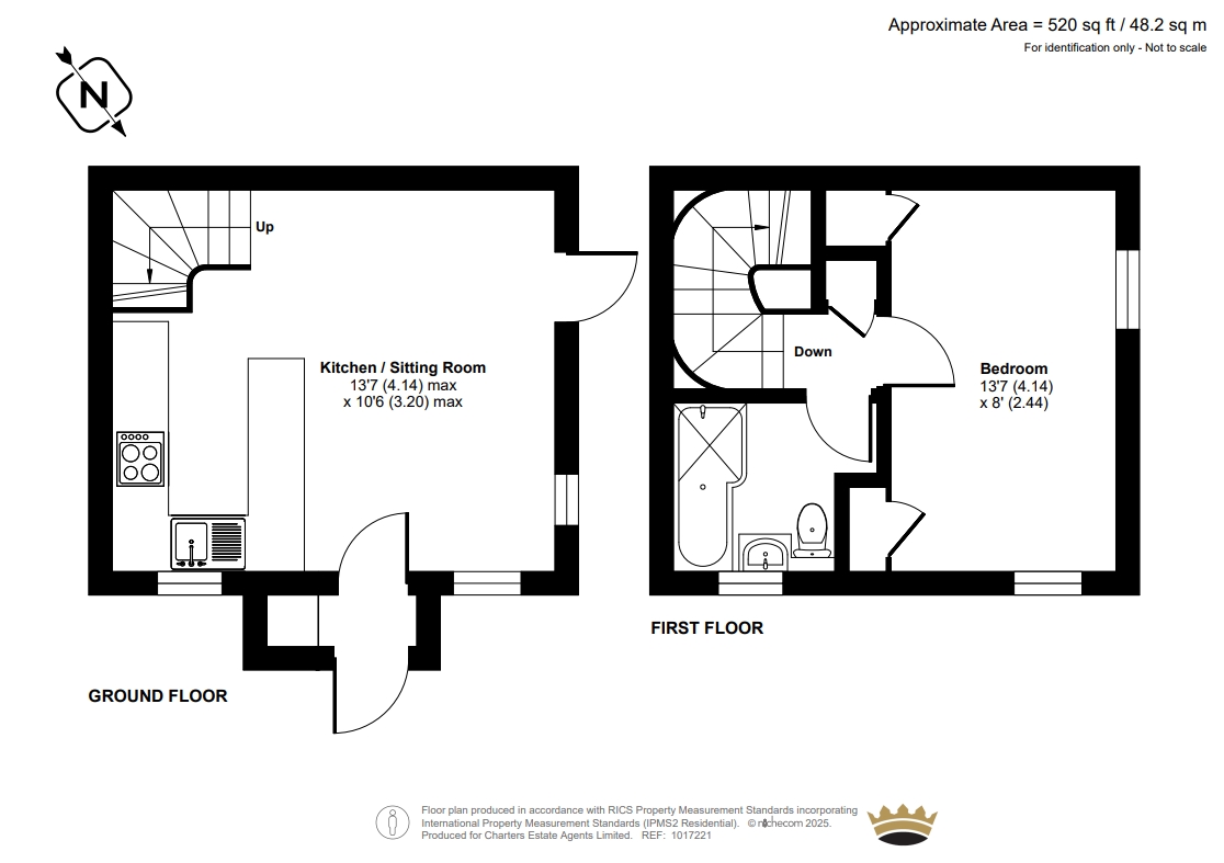
1 bedroom House for sale

£250,000

Hive
Summary
This handsome home is beautifully presented throughout and comes to the market offering an entrance lobby, an impressive open plan sitting room with a part integrated kitchen/breakfast room with access to the garden. A stunning spiral staircase leads up to the first floor, where you will find the family bathroom with shower bathtub and the generous, dual aspect bedroom with integrated storage. Externally, this stylish home comes with a low maintenance, wrap around garden with a private terrace area, ideal for al fresco socialising in the summer months. a gated access leads down to a private parking area for two to three vehicles. This property is an unpack and move straight in to home and truly sits within a class of its own, early viewing is highly recommended. ADDITIONAL INFORMATION Materials used in construction: ASK AGENT For further information on broadband and mobile coverage, please refer to the Ofcom Checker online