` Nelson Place, Nelson Place, Broadstairs - I-Pack
Nelson Place, Nelson Place, CT10 1HQ

2 bedroom House for sale

£375,000

Hive
Summary
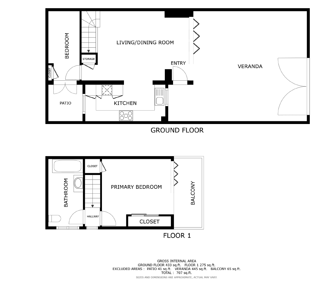
This historic cottage is surrounded by period flint walls which gives the area a truly historic feel a double gated cobbled courtyard can accommodate parking for everyone within the property. The master bedroom has the benefit of a double balcony and offers a distant seaveiw. Planning permission for a third bedroom in the roof space has been granted. Ideally located in Broadstairs, near Viking beach and all amenities offered in this popular Kent coast resort Rarely does such a attttractive property and well located cottage with parking become available in Broadstairs. Bordered by flint walls the decent size courtyard to the front has great potential. particularly as off road parking is such a desired and rare commodity now. Identification Checks Should a purchaser(s) have an offer accepted on a property marketed by Miles & Barr, they will need to undertake an identification check. This is done to meet our obligation under Anti Money Laundering Regulations (AML) and is a legal requirement. We use a specialist third party service to verify your identity. The cost of these checks is £60 inc. VAT per purchase, which is paid in advance, when an offer is agreed and prior to a sales memorandum being issued. This charge is non-refundable under any circumstances. Location Summary The sought-after seaside town of Broadstairs, with quaint fisherman’s cottages and period houses, including Bleak House, once the summer home of Charles Dickens. Broadstairs is also well known for its Blue Flag award winning sandy beaches, including Viking Bay and Joss Bay. The town also offers a good range of facilities with a wonderful selection of boutique shops, restaurants and cinema, together with those found at Westwood Cross shopping centre. Sporting and recreational opportunities in the area include: a leisure centre at Ramsgate, golf at North Foreland Golf Club, the championship golf courses of Royal St Georges and Princes in Sandwich, various sports clubs in the area including Broadstairs Sailing Club, cliff top and beach walking, horse riding and bowls clubs. Broadstairs benefits from the High Speed Rail with direct services to London (St Pancras 76 mins). The nearby A299 Thanet Way provides good access to the motorway network. The Eurotunnel at Cheriton, Port of Dover and Eurostar at Ashford are also easily accessed by car and provide excellent links to the continent.
Measurements
  • Ground Floor
  • Kitchen4.42 x 2.01
  • Lounge5.05 x 3.73
  • Bedroom3.89 x 1.83
  • First Floor
  • Bedroom3.73 x 3.81
  • Bathroom3.71 x 1.70