` Rhodes Gardens, Broadstairs, Kent - I-Pack
Rhodes Gardens, Broadstairs, CT10 1BP

3 bedroom Bungalow for sale

£475,000

Hive
Summary
Identification Checks Should a purchaser(s) have an offer accepted on a property marketed by Miles & Barr, they will need to undertake an identification check. This is done to meet our obligation under Anti Money Laundering Regulations (AML) and is a legal requirement. We use a specialist third party service to verify your identity. The cost of these checks is £60 inc. VAT per purchase, which is paid in advance, when an offer is agreed and prior to a sales memorandum being issued. This charge is non-refundable under any circumstances. Location Summary The sought-after seaside town of Broadstairs, with quaint fisherman’s cottages and period houses, including Bleak House, once the summer home of Charles Dickens. Broadstairs is also well known for its Blue Flag award winning sandy beaches, including Viking Bay and Joss Bay. The town also offers a good range of facilities with a wonderful selection of boutique shops, restaurants and cinema, together with those found at Westwood Cross shopping centre. Sporting and recreational opportunities in the area include: a leisure centre at Ramsgate, golf at North Foreland Golf Club, the championship golf courses of Royal St Georges and Princes in Sandwich, various sports clubs in the area including Broadstairs Sailing Club, cliff top and beach walking, horse riding and bowls clubs. Broadstairs benefits from the High Speed Rail with direct services to London (St Pancras 76 mins). The nearby A299 Thanet Way provides good access to the motorway network. The Eurotunnel at Cheriton, Port of Dover and Eurostar at Ashford are also easily accessed by car and provide excellent links to the continent.
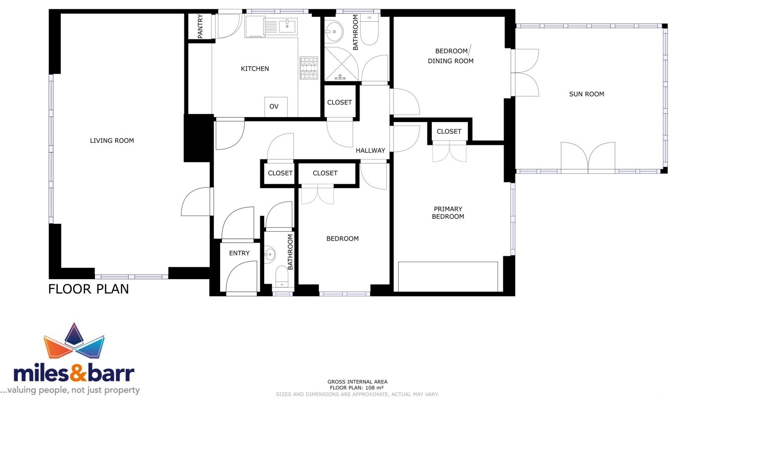
Measurements
  • Entrance Hall
  • Lounge6.9m x 4.06m
  • Kitchen2.77m x 3.53m
  • WC0.81m x 1.45m
  • Dining Room/ Bedroom3.33m x 3.3m
  • Conservatory4m x 3.84m
  • Bathroom1.73m x 1.75m
  • Bedroom3.02m x 4.45m
  • Bedroom2.46m x 3.3m
  • External
  • Garden
  • Off Street Parking
  • Garage4.8m x 2.57m