` Ethelbert Terrace, Ethelbert Terrace, Margate - I-Pack
Ethelbert Terrace, Ethelbert Terrace, CT9 1RX

1 bedroom for sale

£200,000

Hive
Summary
Identification checks If an offer is accepted on a property marketed by Miles & Barr, all purchasers are required to complete ID verification checks. This is a legal obligation under Anti-Money Laundering Regulations. We use a specialist third-party company to carry out these checks. The fee is £60 (including VAT) per person or £120 (including VAT) if purchasing under a company name, payable once the offer is agreed and before the sales memorandum is issued. Please note that this charge is non-refundable. Location Cliftonville is a coastal area in the town of Margate, situated to the east of the main town and mainly occupies Georgian and Victorian properties. The area itself is within easy walking distance of the 'Margate Old Town', Turner Contemporary Art Gallery and the Margate railway station which is approximately 2 miles away and offers fast services to Kings Cross, St. Pancras. There are also good road links to London via the A299 Thanet Way and M2 Motorway.
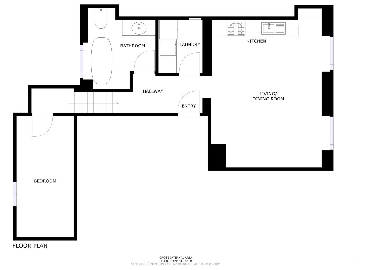
Measurements
  • Entrance
  • Entrance Hall
  • Kitchen/Lounge3.78m x 5.23m
  • Bedroom1.98m x 4.3m
  • Laundry Room1.5m x 1.7m