` Wellis Gardens, Margate, Kent - I-Pack
Wellis Gardens, Margate, CT9 5RG

4 bedroom House for sale

£515,000

Hive
Summary
ID DISCLAIMER Identification checks Should a purchaser(s) have an offer accepted on a property marketed by Miles & Barr, they will need to undertake an identification check. This is done to meet our obligation under Anti Money Laundering Regulations (AML) and is a legal requirement. We use a specialist third party service to verify your identity. The cost of these checks is £60 inc. VAT per purchase, which is paid in advance, when an offer is agreed and prior to a sales memorandum being issued. This charge is non-refundable under any circumstances. LOCATION SUMMARY Margate is a fantastic seaside town and contains the areas of Cliftonville, Garlinge, Palm Bay and Westbrook. The energy surrounding Margate is excellent, it holds the likes of a world class Art Gallery, the UK's original pleasure park 'Dreamland', fast Rail links into London and of course not forgetting the stunning sandy beaches and sparkling bays. You are within a 10 minute drive to the neighbouring towns which are Broadstairs, Ramsgate and Birchington. There are also good road links to London via the A299 Thanet Way and M2 Motorway.
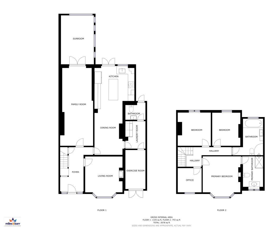
Measurements
  • Entrance Hall
  • Hallway
  • Living Room 14.23m x 3.76m
  • Living Room 28.06m x 3.06m
  • Kitchen/Diner8.72m x 3.98m
  • Exercise Room1.96m x 3.92m
  • Laundry Room2.77m x 1.91m
  • WC
  • Storage
  • Garden Room4.76m x 3.04m
  • First Floor
  • Bedroom2.42m x 1.76m
  • Bedroom4.25m x 3.56m
  • Ensuite Bathroom3.34m x 1.98m
  • Bedroom3.33m x 3.35m
  • Bedroom3.33m x 2.82m
  • Bathroom3.66m x 1.98m
  • Exterior
  • Front Garden
  • Rear Garden