` St. Catherines Drive, Faversham, Kent - I-Pack
St. Catherines Drive, Faversham, ME13 8LQ

0 bedroom Land for sale

£550,000

Hive
Summary
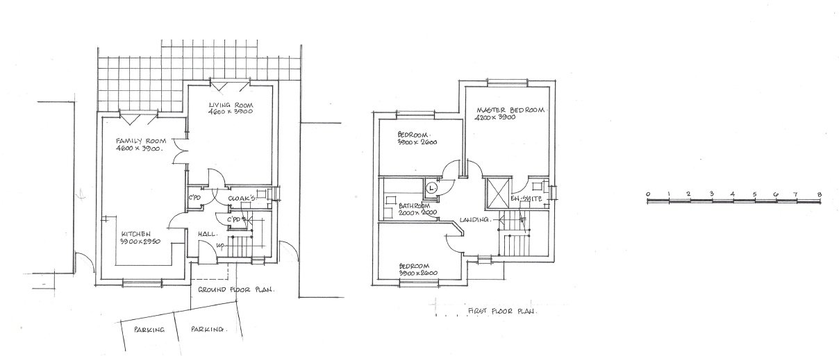
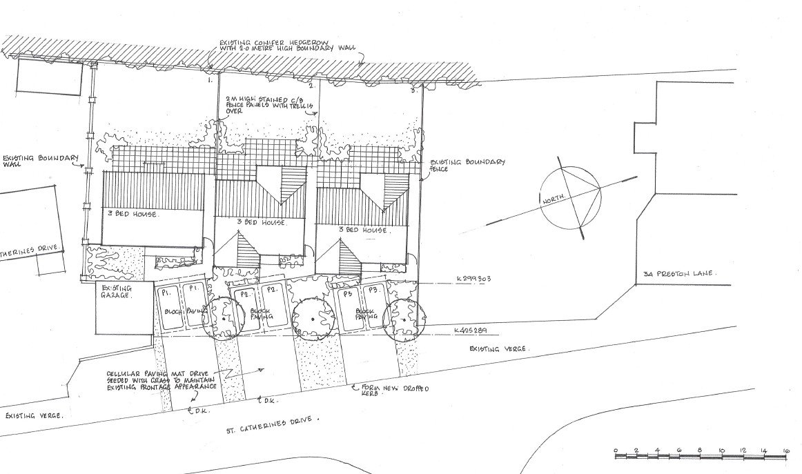
Located in this popular residential area of Faversham, amongst well-kept family homes, is this surplus garden site with detailed planning permission. Granted under ref 25/500593 by Swale District Council the permission allows for three detached self-build homes, with all the necessary SAMMS payments already made to allow this consent to be implemented. However, there is scope to also develop this site as a commercial development project subject to discussions over CIL and Ecological obligations. Comprising of two house types both designs allow for 3 x beds, 2 x bathrooms and well laid out family living spaces. Every house will enjoy surface parking and sensible rear gardens within the established site. With efficient sizes and established resale values in the immediate area the site also has the benefit of being within an established built-up area; so services should be readily available (subject to suitable checks being made by the purchaser). Planning reference - 25/500593/FULL Erection of 3 no. 3-bedroom detached houses with parking and access. Plot 1 - 1,240 sq.ft Plot 2 - 1,440 sq.ft Plot 3 - 1,440 sq.ft Location Summary Faversham is a charming historic market town in Kent, known for its picturesque streets, independent shops, and rich maritime and brewing heritage. Nestled close to the Kent Downs and the Swale estuary, it offers beautiful countryside walks alongside excellent rail links to London. With a vibrant community, popular weekly market, and a great selection of cafés, pubs, and schools, Faversham combines traditional character with modern convenience. Identification checks Should a purchaser(s) have an offer accepted on a property marketed by Miles & Barr, they will need to undertake an identification check. This is done to meet our obligation under Anti Money Laundering Regulations (AML) and is a legal requirement. We use a specialist third party service to verify your identity. The cost of these checks is £60 inc. VAT per purchase, which is paid in advance, when an offer is agreed and prior to a sales memorandum being issued. This charge is non-refundable under any circumstances.