` Pier Avenue, Pier Avenue, Herne Bay - I-Pack
Pier Avenue, Pier Avenue, CT6 8TR

3 bedroom House for sale

£325,000

Hive
Summary
Identification Checks If an offer is accepted on a property marketed by Miles & Barr, all purchasers are required to complete ID verification checks. This is a legal obligation under Anti-Money Laundering Regulations. We use a specialist third-party company to carry out these checks. The fee is £60 (including VAT) per person or £120 (including VAT) if purchasing under a company name, payable once the offer is agreed and before the sales memorandum is issued. Please note that this charge is non-refundable. Location Herne Bay is a popular coastal town benefiting from a range of local amenities including retail outlets and educational facilities. There are also a good range of leisure amenities including rowing, sailing and yacht clubs along with a swimming pool, theatre and cinema. The mainline railway station (approximately 1 mile distant) offers fast and frequent links to London (Victoria approximately 85mins) as well as the high speed service to London (St Pancras approximately 87mins). The town also offers excellent access to the A299 which gives access to the A2/ M2 motorway network. The picturesque town of Whitstable is only 5 miles distant which also enjoys a variety of shopping, educational and leisure amenities including sailing, water sports and bird watching, as well as the seafood restaurants for which it has become renowned. The City of Canterbury is approximately eight miles distant with its Cathedral, theatre and cultural amenities, as well as benefiting from excellent public and state schools. The City also boasts the facilities of a major shopping centre enjoying a range of mainstream retail outlets as well as many individual shops.
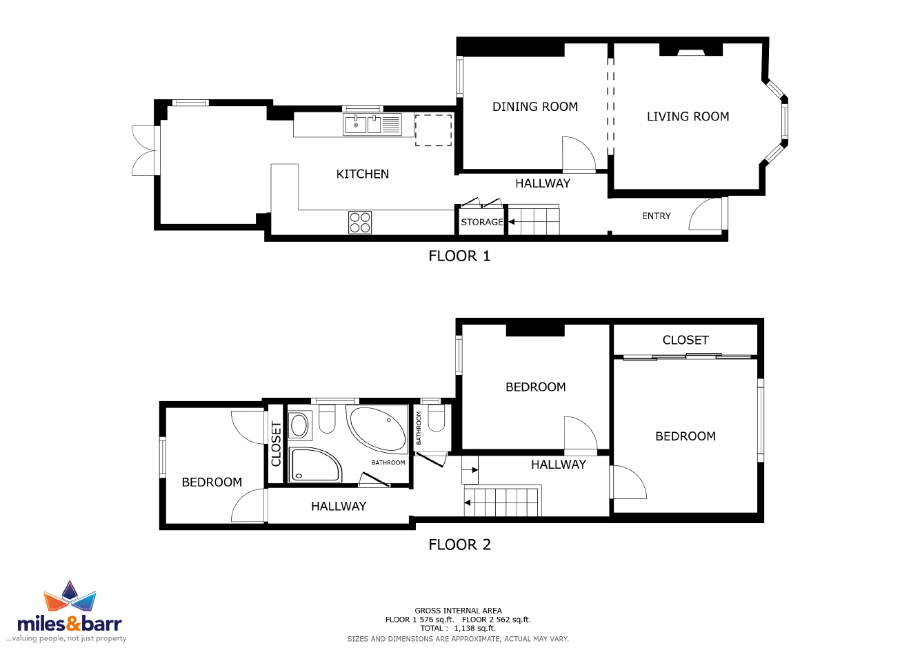
Measurements
  • Entrance Hall
  • Living/ Dining Room7.61m x 3.53m
  • Kitchen4.51m x 2.58m
  • Sitting Area2.38m x 2.78m
  • First Floor
  • Bedroom2.38m x .78m
  • Bathroom
  • WC
  • Bedroom3.48m x 3.72m
  • Bedroom3.50m x 3.15m
  • Second Floor
  • Attic