` Hartsdown Road, Margate, Kent - I-Pack
Hartsdown Road, Margate, CT9 5QZ

2 bedroom House for sale

£290,000

Summary
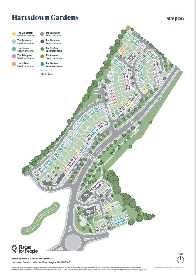
SHARED OWNERSHIP LISTINGS ONLY Shared Ownership offers an affordable way to buy a home. Purchasers buy a share of the property and pay a subsidised rent on the remaining share, with the option to increase ownership over time. Deposits and mortgage payments are based only on the share purchased, making it an ideal choice for buyers unable to purchase outright. HOUSE TYPES GRAFTON The Grafton is a three-bedroom detached home extending to approximately 1,031 sq. ft. thoughtfully designed for modern family living. With its attractive double-fronted façade, excellent kerb appeal and well-balanced internal layout, The Grafton delivers comfort, style and functionality in equal measure. The ground floor opens with a welcoming entrance hallway leading to a versatile separate study, perfect for home working or a quiet snug. To one side of the home is a spacious living room, ideal for relaxing or entertaining, while the heart of the property lies opposite in the open-plan kitchen and dining area. Finished with contemporary fittings, this space benefits from patio doors opening directly onto the private rear garden, ideal for family life and indoor-outdoor entertaining. A convenient utility room sits adjacent to the kitchen, providing additional storage and laundry space. Upstairs, the Grafton offers three well-proportioned double bedrooms. The principal bedroom features a private en-suite, while the remaining bedrooms are served by a modern family bathroom. KELMARSH The Kelmarsh is a beautifully designed three-bedroom semi-detached home offering approximately 1,173 sq. ft. of versatile accommodation arranged over three floors. With generous room sizes and a flexible layout, this home is perfectly suited to modern family living. The ground floor features a welcoming central hallway that creates a strong sense of space and flow throughout. To the front of the property is a bright and comfortable living room, ideal for relaxing or entertaining. To the rear, the home opens into an impressive open-plan kitchen and dining area, perfectly proportioned for family life and social occasions. Patio doors lead directly onto the private rear garden, providing seamless indoor-outdoor living. A downstairs WC completes the ground floor. The first floor offers two well-sized double bedrooms, served by a contemporary family bathroom, ideal for children, guests or home working. Occupying the entire top floor is the principal bedroom suite, providing a peaceful and private retreat. This spacious room benefits from a modern en-suite shower room and a generous storage area, ideal for wardrobes or dressing space. ELLINGHAM The Ellingham is a well-designed three-bedroom home offering approximately 895 sq. ft. of thoughtfully planned accommodation, ideal for modern family living, it offers a comfortable and functional home perfectly suited to today’s lifestyle. The ground floor opens with a spacious entrance hallway, providing access to a convenient downstairs WC and a bright kitchen/dining room positioned to the front of the property. To the rear, a generously proportioned living room enjoys patio doors opening directly onto the private rear garden, creating a perfect space for relaxing, entertaining and family time. Upstairs, the principal bedroom benefits from a stylish en-suite shower room, while two further double bedrooms are served by a contemporary family bathroom. The property also features excellent built-in storage, with four cupboards thoughtfully positioned throughout the home to keep everyday living clutter-free. RAGLEY The Ragley is a beautifully designed four-bedroom detached home offering approximately 1,321 sq. ft. of well-planned accommodation, set within the sought-after Hartsdown Gardens development. Ideal for growing families or those seeking generous space with modern styling, this home combines practicality with contemporary living. The ground floor opens into a welcoming entrance hallway, complemented by a downstairs WC for added convenience. To the front of the property is a spacious separate living room, providing a comfortable retreat for relaxing evenings or entertaining guests. Spanning the rear of the home is an impressive open-plan kitchen and dining area, forming the heart of the property and perfectly suited to family life and social occasions. Finished with modern units and integrated appliances, this space benefits from wide patio doors opening onto the rear garden, creating seamless indoor-outdoor living. A separate utility room sits just off the kitchen, offering practical storage and keeping everyday tasks neatly tucked away. Upstairs, the property offers four well-proportioned bedrooms, including three generous doubles. The principal bedroom features a stylish en-suite shower room, while the remaining bedrooms are served by a contemporary family bathroom. BARWICK The Barwick offers a smart and practical layout, perfect for first-time buyers, couples, or young families looking for a modern and comfortable new home. A welcoming entrance hallway leads to a modern kitchen, a convenient downstairs cloakroom, and a bright, open-plan living and dining area. Patio doors open onto a private rear garden, creating an ideal space for relaxing or entertaining. Upstairs, two generous double bedrooms provide ample space for rest and storage, complemented by a sleek family bathroom. With additional built-in storage cupboards on both floors. ESHTON The Eshton is a beautifully designed three-bedroom home offering approximately 895 sq. ft. of well-planned living space across two floors, perfectly suited to couples, young families, or downsizers seeking comfort, style and practicality. The ground floor features a spacious open-plan kitchen, dining and living area, ideal for everyday living and entertaining. The kitchen provides ample workspace and storage, while the dining and living areas flow seamlessly to the rear of the home. Patio doors open onto the private garden, creating a light-filled space that effortlessly blends indoor and outdoor living. A convenient downstairs WC completes the ground floor. Upstairs, three well-proportioned bedrooms include a generous master with en-suite shower room, offering a private retreat, while a contemporary family bathroom serves the remaining bedrooms. OVERVIEW ALL LISTINGS Discover Hartsdown Gardens is an attractive new homes development offering spacious, flexible living in a charming coastal setting on England’s southeast coast. This impressive collection of two, three and four-bedroom houses has been thoughtfully designed to suit a wide range of buyers, from first-time purchasers and growing families to downsizers seeking comfort and convenience. Each contemporary home is finished to a high specification throughout, featuring modern fitted kitchens with integrated appliances, stylish bathrooms, ready-turfed rear gardens provide ideal outdoor space, while energy-efficient technology ensures lower running costs and everyday comfort. LOCATION Margate is a fantastic seaside town and contains the areas of Cliftonville, Garlinge, Palm Bay and Westbrook. The energy surrounding Margate is excellent, it holds the likes of a world class Art Gallery, the UK's original pleasure park 'Dreamland', fast Rail links into London and of course not forgetting the stunning sandy beaches and sparkling bays. You are within a 10 minute drive to the neighbouring towns which are Broadstairs, Ramsgate and Birchington. There are also good road links to London via the A299 Thanet Way and M2 Motorway. DISCLAIMER The specification maybe subject to some change as necessary and without notice. Any photographs or computer-generated images may not represent the actual fittings and furnishings of the development. The specification is not intended to form part of any contract or warrant unless specifically incorporated in writing into the contract. The developer retains the right to adjust and vary specifications.