` Hyde Street, Winchester, Hampshire - I-Pack
Hyde Street, Winchester, SO23 7FD

2 bedroom for sale

£365,000

Hive
Summary
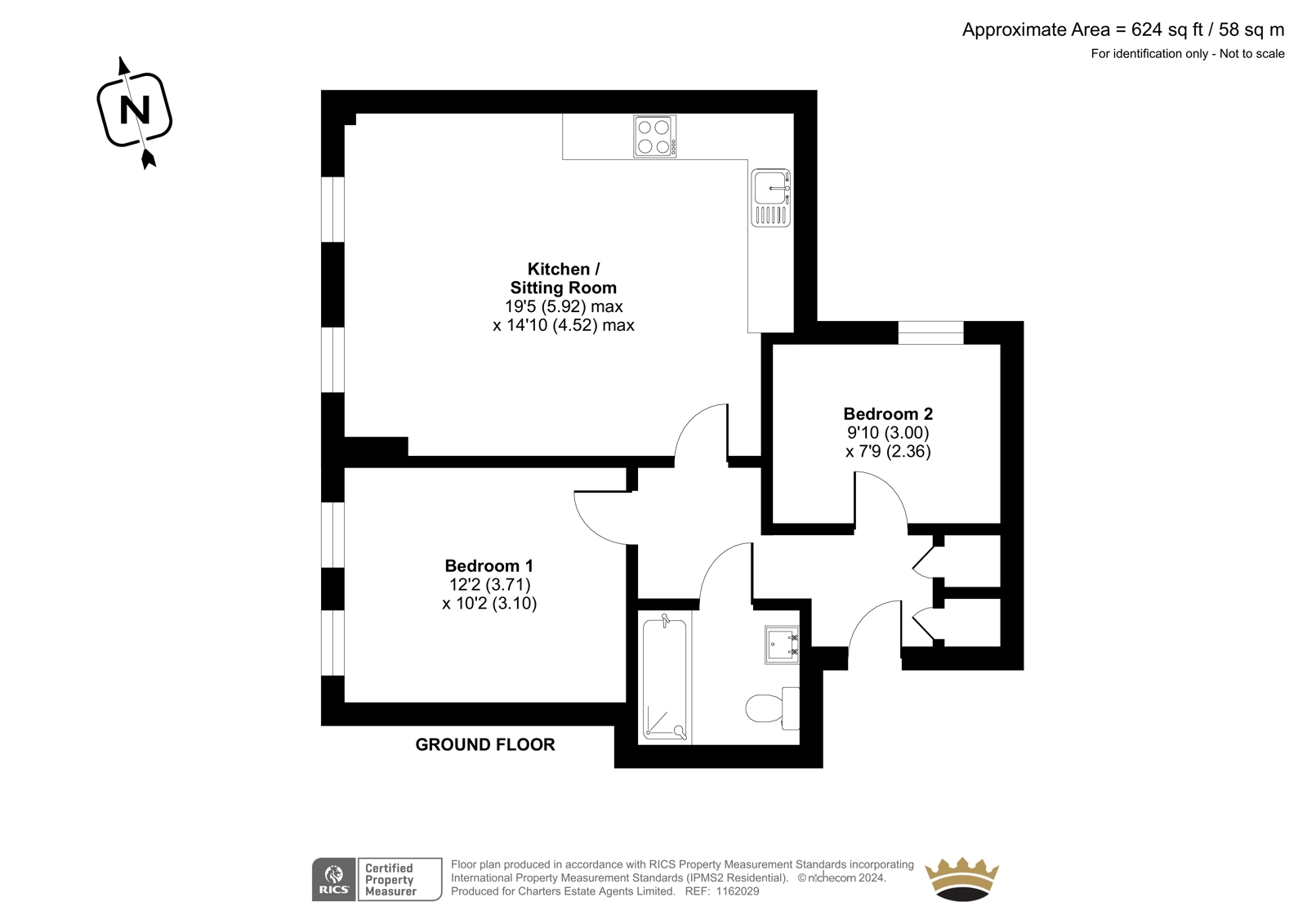
Fourteen high-specification apartments benefit from lift access to all floors, a CCTV intercom system and smart controlled electric heating together with electric gated secure private parking and basement storage cupboard/bike store for the apartments. Flat 3 is a superb two double bedroom property located on the ground floor. A welcoming entrance hallway features built-in storage and door to the well-proportioned kitchen/sitting/dining room boasting a range of sleek wall and base units with AEG appliances and a Quooker instant hot water tap. Furthermore, integrated fridge/freezers, dishwashers and washing machines are on offer. The two double bedrooms are served by the luxury, fully tiled bathroom, with the principal bedroom featuring a range of built-in wardrobes. The show flats have the option to be purchased fully furnished with all furniture included in the sale. Lease Information - Lease Length: 150 Years Service Charge & Ground Rent: £1925 for two bedrooms and £1425 for one bedroom. These details are to be confirmed by the vendor's solicitor and must be verified by a buyer's solicitor. ADDITIONAL INFORMATION Services: Water – Mains Gas - No Electric - Mains Sewage - Mains Heating – Electric Materials used in construction: Traditional How does broadband enter the property: Ask Agent For further information on broadband and mobile coverage, please refer to the Ofcom Checker online