` Port Lane, Winchester, Hampshire - I-Pack
Port Lane, Winchester, SO21 2JS

3 bedroom House for sale

£485,000

Hive
Summary
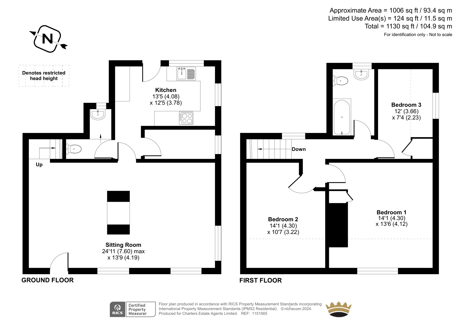
The ground floor has a spacious feel with one large open plan reception room separated slightly by a feature fireplace, both of generous proportions which have provided both a dining area and sitting area. The kitchen is located to the rear of the property with a further WC and storage cupboard. There are three first floor bedrooms and a family bathroom. The garden is mainly paved and benefits from side access, the garden has a very private feel and offers a superb space for entertaining. ADDITIONAL INFORMATION Services: Water: mains Gas: none Electric: mains Sewage: mains Heating: oil central heating Materials used in construction: Ask Agent How does broadband enter the property: Ask Agent For further information on broadband and mobile coverage, please refer to the Ofcom Checker online