` Langton Close, Winchester, Hampshire - I-Pack
Langton Close, Winchester, SO22 6RJ

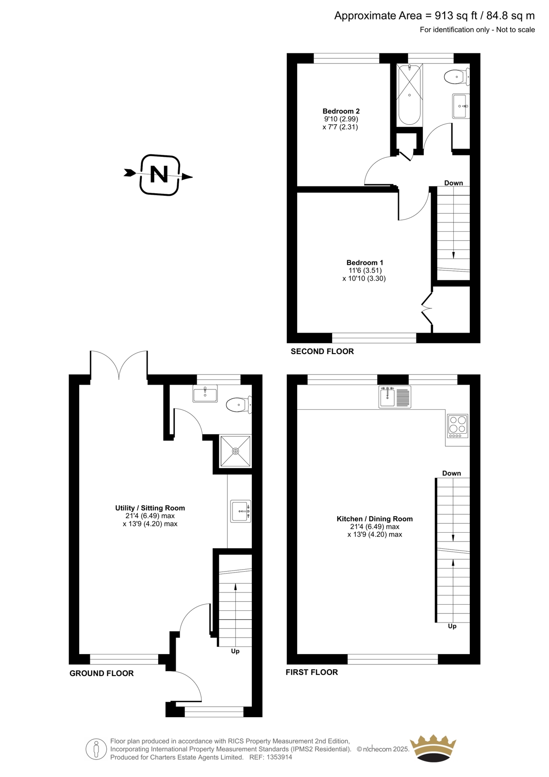
3 bedroom House for sale

£485,000

Hive
Summary
The first floor is the heart of the home: a bright, dual-aspect open-plan kitchen, dining, and sitting area. A wood-burning stove creates a cosy focal point, while a large picture window captures sweeping views across the sought-after Fulflood rooftops. Upstairs, two generous double bedrooms and a stylish refitted bathroom complete the accommodation. To the front, a private driveway provides valuable off-road parking. Fulflood is one of Winchester’s most desirable neighbourhoods, prized for its leafy residential streets and strong sense of community. The city centre, mainline station (with fast links to London Waterloo), and a wide choice of independent shops, cafés, and pubs are all within easy reach – making the area especially popular with families and professionals alike. The property also falls within catchment for highly regarded schools, including Western Church of England Primary and The Westgate School, both rated highly by Ofsted. With Peter Symonds Sixth Form College on the doorstep and excellent transport links close by, this location continues to be one of Winchester’s most sought-after choices for long-term family living. ADDITIONAL INFORMATION Materials used in construction: Ask Agent For further information on broadband and mobile coverage, please refer to the Ofcom Checker online