` Brighton Road, Worthing, West Sussex - I-Pack
Brighton Road, Worthing, BN11 2FL

3 bedroom for sale

£1,600,000

Hive
Summary
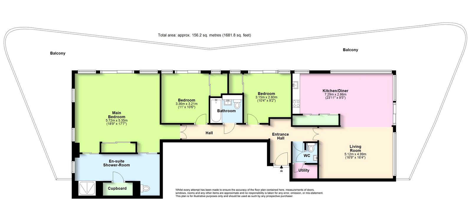
Upon entering the property, a welcoming hallway finished with elegant wood-effect flooring, draws you effortlessly through to the spectacular main living space. Here, expansive glazed frames boast uninterrupted sea views across the English Channel, creating a calming backdrop to everyday living. The living area is impressively proportioned, offering generous space for luxurious seating and a full dining arrangement—ideal for entertaining or simply relaxing while soaking in the ever-changing coastal panorama. The contemporary kitchen is both stylish and functional, featuring a sleek range of base and wall units, an island, and an array of integrated Miele appliances, providing a refined environment for both casual cooking and gourmet hosting. The master bedroom suite is a sanctuary in its own right, complete with modern fitted wardrobes, captivating sea views, direct access to the balcony, and a beautifully appointed en suite. The en suite showcases a walk-in shower, twin wash hand basins, WC, heated towel rail, and discreet storage, all finished to a high contemporary standard. The second bedroom is a generous double, also enjoying sea views and built-in wardrobe space, with ample room for additional furnishings. The third bedroom, another well-proportioned double with sea views, offers flexibility as a guest room or a home office. The main bathroom is elegantly finished with fully tiled walls, a bath with overhead shower, wash hand basin, and WC, while a separate cloakroom with WC and basin, along with a dedicated utility cupboard, completes the internal accommodation. Externally, the penthouse truly excels with a wrap-around balcony offering sweeping views towards Brighton and out across the English Channel—an exceptional space for outdoor dining, entertaining, or simply enjoying coastal sunsets. Further benefits include two allocated underground parking spaces and a generous size storage cupboard within the secure basement. This is coastal penthouse living at its finest—luxurious, light-filled, and perfectly positioned to enjoy the very best of Worthing’s seafront lifestyle. Beyond the apartment, Bayside offers a wealth of amenities for its residents. Underfloor heating ensures year-round comfort, while a dedicated concierge service attends to Residents needs. There is exclusive access to a private health club, featuring a swimming pool, gym, sauna, and steam room, encouraging an active and indulgent lifestyle in a serene coastal setting.